
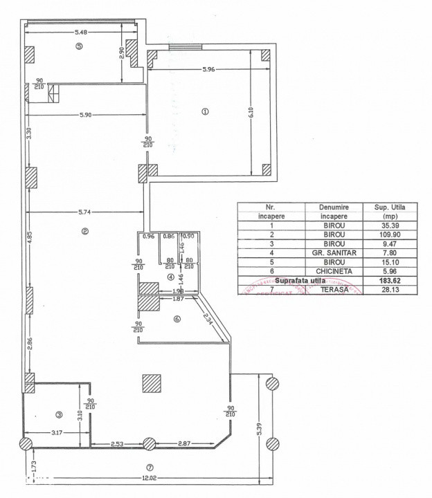
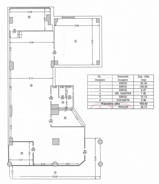
Agentia Invest Imobiliare va propune spre inchiriere un spatiu comercial de 184 mp, situat pe strada Anastasie Panu.
Spatiul este compartimentat insa se poate recompartimenta in functie de cum aveti nevoie.
Acesta dispune de centrala termica, 3 aere conditionate si o vitrina de ~ 10 ml.
Spatiul este compus din 6 incaperi dintre care 3 se pot transforma in open space (110 mp + 35 mp + 10 mp) plus birou (15mp), chicineta (5mp) si grup sanitar (8mp).
Pretul este de 16 euro/ mp.
La momentul inchirierii se percepe 1 luna de chirie + 2 luni garantie + 1 luna onorariul agentiei.
Contactați-ne acum pentru mai multe detalii și pentru a programa o vizionare!
Alexandru Plesuvu
☎️ 0752 489 020