


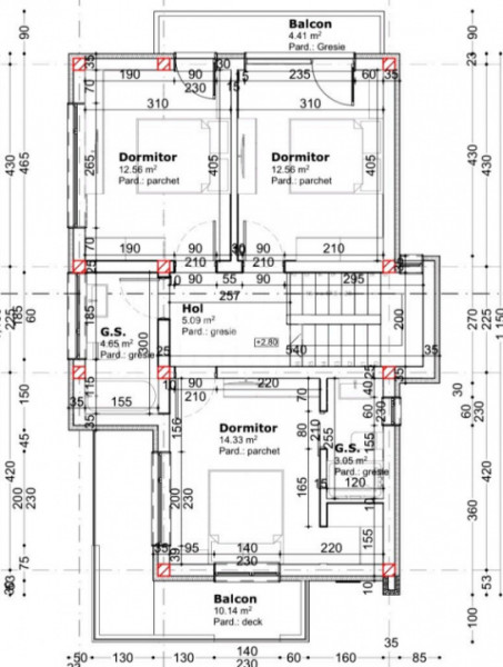
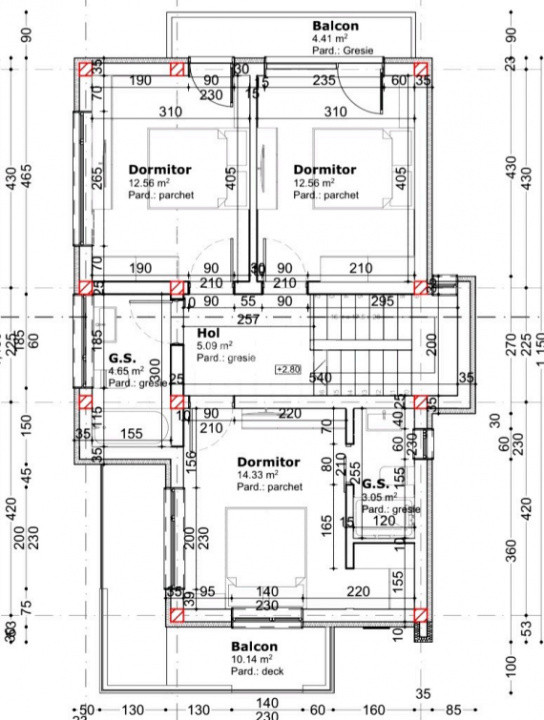
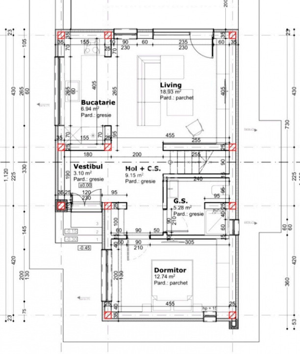
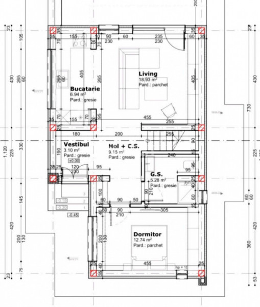
INVEST IMOBILIARE va propune spre vanzare o casa cu 5 camere , situata in zona Valea Adanca .
Imobilul este compus din 4 dormitoare, 3 bai , bucatarie si un living generos .
CASA SE POATE ACHIZITIONA SI PRIN RATE DIRECT LA DEZVOLTATOR .
Avansul minim ar fi de 50.000 de euro , iar perioada maxima de rate pe 5 ani .
Imobilul o sa fie dotat cu toate utilitatile necesare si se preda la cheie cu toate finisajele incluse !!!
Momentan exista posibilitatea de alegere a finisajelor interioare .
📍 Situată într-o zonă liniștită, cu acces facil, casa este ideală pentru o familie care caută intimitate, spațiu și un trai modern, aproape de natură.
Contactați-ne acum pentru mai multe detalii și pentru a programa o vizionare!
Andrei Hutanu
☎️ 0743 657 754