





Invest Imobiliare va propune spre vanzare o casa cu 4 camere situata in Valea Adanca.
Imobilul este finalizat , posibilitate de mutare imediata !!
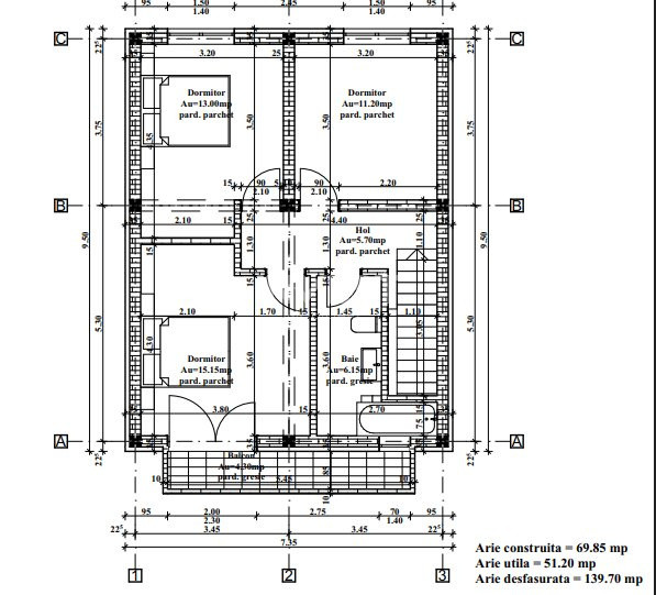
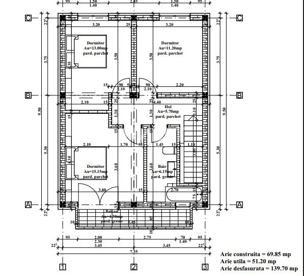
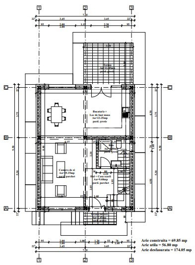
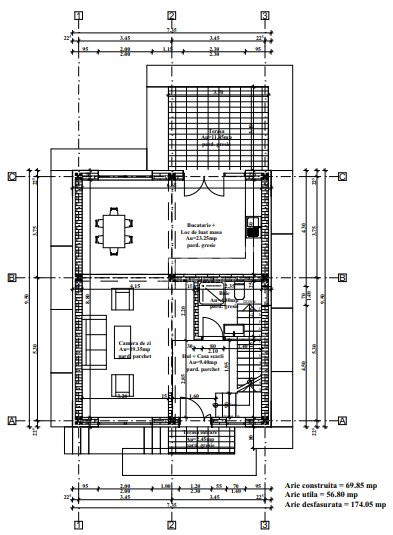
Casa are o suprafata utila totala de 107 mp si dispune de un teren aferent de 410 mp .
Imobilul se preda la cheie , cu toate finisajele incluse in pret .
La cerere exista si varianta de personalizare a finisajelor interioare intr-o unitate in constructie .
Pentru mai multe informații și pentru a programa o vizionare, vă rog să mă contactați la numărul de telefon: 0743 657 754, Andrei Huțanu.