







Vă propun spre vânzare o casă spațioasă și bine compartimentată, situată în localitatea Rediu, Breazu , într-o zonă rezidențială liniștită cu iluminat stradal si acces rapid către oraș.
Imobilul dispune de 125 mp utili și este amplasat pe un teren de 424 mp, oferind confort, intimitate și posibilități multiple de amenajare.
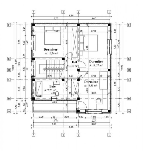
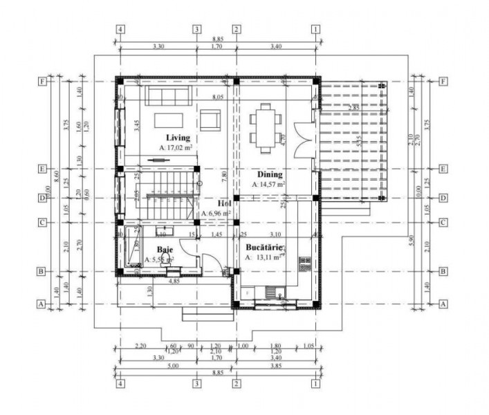
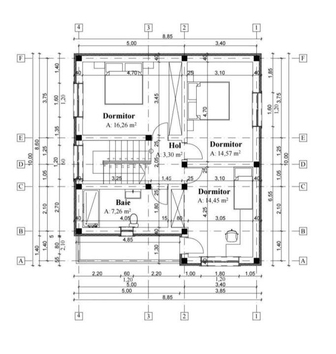
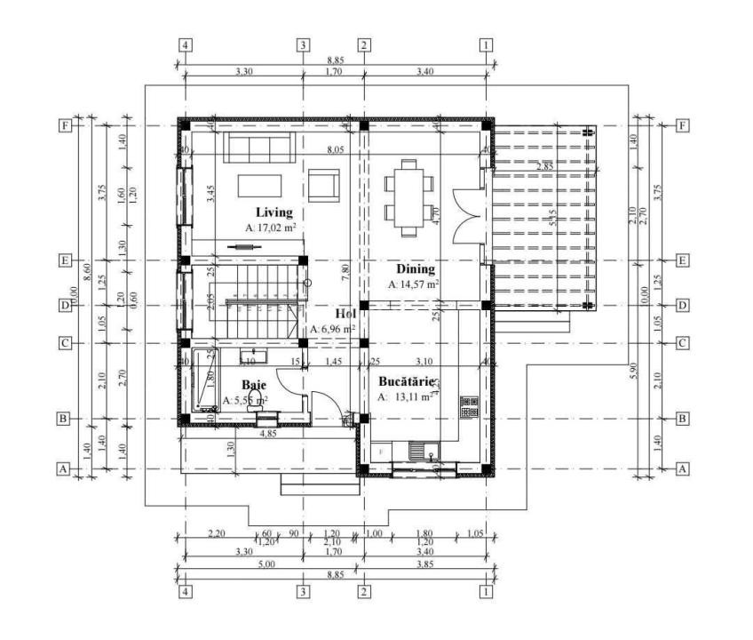
Compartimentare:
Parter: living luminos cu bucătărie ce poate fi separată, baie si hol generos.
Etaj: 3 dormitoare spațioase, baie, hol + pod
Exterior: 2 terase si 2 locuri de parcare betonate.
Dispune de planseu de beton, camere de supraveghere, porti electrice, scari din lemn masiv.
Pentru a va putea personaliza casa: parchetul, usile interioare si scarile se aleg de catre cumparator.
Proprietatea este intabulată, cu acte la zi, gata pentru vânzare și pentru a fi preluată imediat.
Este ideală pentru o familie care își dorește un cămin modern, bine organizat, într-o zonă în plină dezvoltare, aproape de toate facilitățile din Iași cu scoala la 500 m si statie transport public in comun la 200 m.
Comision 0%
Pentru mai multe detalii, vizionări sau alte variante vă așteptăm cu drag la numărul de telefon afișat