


















Vă propunem spre vânzare o casă individuală cu 4 camere, cu regim de înălțime parter + etaj + pod, situată în zona Miroslava-Vorovesti in imediata apropere a mijloacelor de transport în comun.
Suprafata utila a casei va fi de aproximativ 104 mp si dispune de un teren generos de 500 mp .
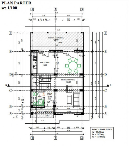
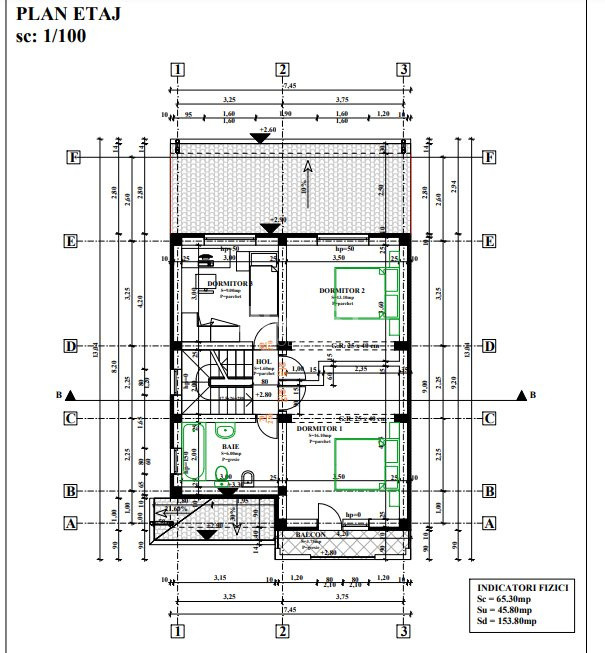
Casa este compartimentată astfel:
Parter: hol de acces, grup sanitar, bucătărie și sufragerie cu acces către terasă;
Etaj: hol, 3 dormitoare, balcon și grup sanitar;
Pod: spațiu de depozitare.
Imobilul se predă complet finisat, dotat cu încălzire în pardoseală, cu termostate Wi-Fi pentru fiecare cameră, tâmplărie PVC cu 3 rânduri de sticlă și este branșat la toate utilitățile (apă, gaz, electricitate și canalizare).
TERMEN DE PREDARE septembrie-octombrie 2026 !!!!
Pentru mai multe detalii și vizionări, vă rog să mă contactați la numărul de telefon: 0743657754 - Andrei Huțanu.