






Vă propunem spre vânzare o casă inedită, în apropiere de Popas Păcurari
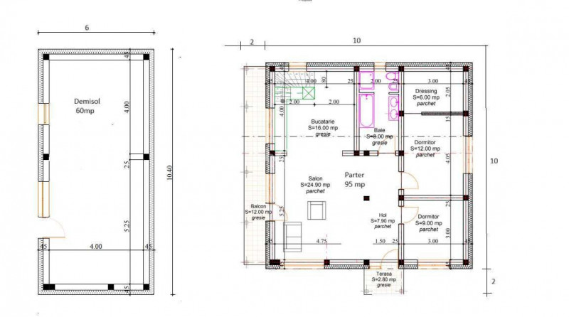
Suprafata utila 155mp. (95 mp etaj, 60mp demisol)
Constructie finalizata in Mai 2018 cu toate materialele conf. proiectului.
-fundatie hidroizolata
-pereti caramida
-stalpi beton cu fier de 10
-izolatie exterioara din polistiren de 10 cm cu tencuiala intre perete si polistiren
Parter de 60 mp cu acces separat, baie proprie, posibilitate de acces la etaj cu scara interioara
Etaj de 95mp, 2 dormitoare, baie, bucatarie open space din care se poate coborî la demisol sau urca in pod, balcon 12mp.
Acoperis mansardabil, legaturile la apa, curent trase.
Placa beton intre demisol si etaj, tavan pe structura din barne de 12x12 cm intre etaj si pod cu izolatie din vată minerală si podea din scândură.
Incalzire cu centrala prin condensare cu 10 calorifere mari, repartitoare si instalatie ingropata din PEX.
Terasa betonata de aprox. 30 mp, cu camin pt apa, robinet aditional de exterior, regulator presiune apa, clapeta de sens pt evacuare WC-uri.
Tamplarie tripan, suprafata vitrata foarte mare, usa acces de 1m latime, casa este foarte bine luminata natural, geamurile principale pozitionate catre apus, vedere deschisa. In zilele senine se vede Ceahlăul.
Teren de 1550 mp din care 400 mp intravilan, 600 mp teren curte, 550 mp padure.
utilate.
Pentru mai multe detalii, vizionări sau alte oferte vă așteptăm cu drag la numărul de telefon afișat