















Va propunem spre vanzare o casa de tip duplex, cu regim de inaltime parter + pod ce poate fi mansardabil, amplasata pe o suprafata de teren de 260 mp si situata in zona Valea Lupului, platoul Popas Pacurari, IASI. Pentru mai multe detalii va rog sa ma contactati la numarul de telefon afisat.
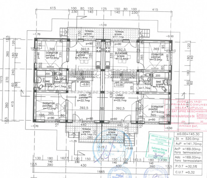
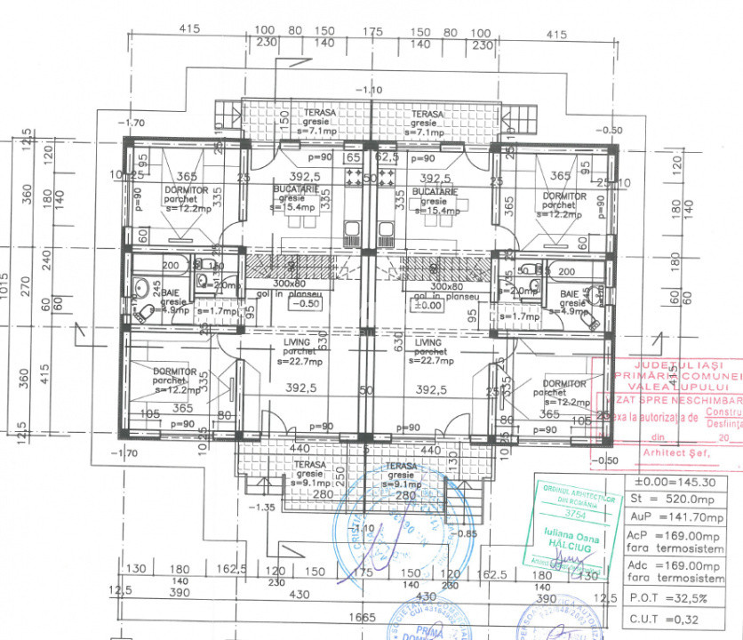
Casa are o suprafata utila de 70 mp, la care se adauga 45 mp ce pot fi transformati in suprafata utila, unde se pot amenaja 2 dormitoare, 1 baie, dressing si spatii de depozitare.
Compartimentarea locuintei este astfel:
- parter: hol acces, 2 dormitoare, 2 bai, bucatarie cu acces spre terasa.
- pod: inaltime pana la tavan de 3.3 m, placa de beton intre nivele + utilitatile trase pentru modificare si transformare in camere; aceste modificari pot fi realizate si de catre constructor, contracost.
Imobilul a fost construit pe structura din beton, cu compartimentari din caramida, tencuiala interioara si exterioara, izolatie exterioara cu vata bazaltica; pentru acoperis s-a colaborat cu Carreta, tamplarie termica marca Rehau, iar la interior incalzirea este prin pardoseala.
Utilitati: apa, gaze, electricitate si canalizare.
Casa este finalizata complet, bransata la utilitati si intabulata pentru cei ce acceseaza un credit, oferind posibilitatea mutarii rapide.
Pret 169.000 Euro (negociat de la 179.000 euro).
Pentru detalii, vizionari sau alte oferte potrivite cerintelor d-voastra imobiliare, ma puteti contacta, consilier imobiliar Victor Negru.