










INVEST IMOBILIARE va propune spre vanzare un duplex cu 3 camere situatat in zona VOROVESTI-MIROSLAVA .
Imobilul are o suprafata utila de 80 mp si este situat pe un teren aferent de 250 mp .
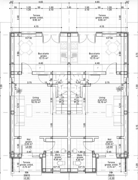
Compartimentarea este urmatoarea :
*PARTER:
-Baie - 4.5 mp
-Living - 19 mp
-Bucatarie - 13 mp
-Hol - 3 mp
-Terasa acoperită intrare - 3 mp
-Terasă neacoperită - 10 mp
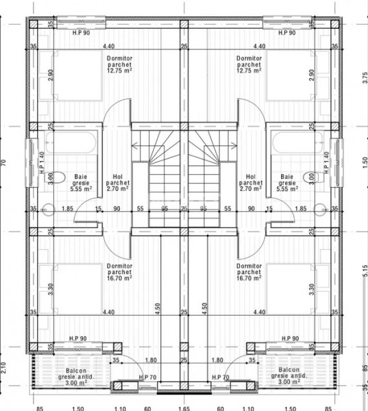
* ETAJ:
-Dormitor 1 - 17 mp
-Dormitor 3 - 13 mp
-Hol - 3 mp
-Baie - 6mp
Structura constructiei este integral din beton si zidarie de caramida portanta. La pretul afisat se adauga si TVA .
Imobilul momentan este in constructie, cu termen de predare luna aprilie 2026 iar momentan exista posibilitatea de alegere a finisajelor .
Pentru detalii complete și programarea unei vizionări, contactează-mă telefonic chiar acum!
Andrei Hutanu
📞 0743 657 754