




INVEST IMOBILIARE vă oferă spre vânzare o proprietate situată într-un complex rezidențial din zona Lunca Cetățuii.
Imobilul are termen de predare inceputul anului 2026 și va beneficia de toate utilitățile necesare: apă, curent electric, gaz și canalizare.
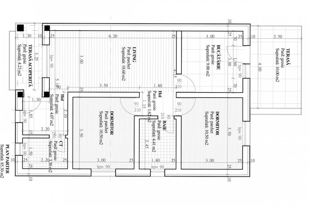
Suprafata utila a casei este de 75 mp si este construita pe un teren aferent de 301 mp .
Casa, construită pe un singur nivel, este compartimentată astfel: hol, două dormitoare, baie, living și bucătărie open-space cu acces direct pe terasă.
Podul oferă un spațiu generos pentru depozitare, iar izolația este realizată cu spumă poliuretanică de înaltă calitate.
Proprietatea include parcare auto și alei betonate.
PRETUL AFISAT ESTE PROMOTIONAL DOAR ACEASTA LUNA SI ESTE VALABIL DOAR PENTRU PLATA INTEGRALA CASH LA ANTECONTRACT !!
Pentru mai multe informații sau pentru a programa o vizionare, vă rugăm să ne contactați:
Andrei Huțanu - 0743 657 754