








Invest Imobiliare vă propune spre vânzare o casă tip duplex, cu regim de înălțime Parter + Pod mansardabil, amplasată pe o suprafață de teren de 379 mp, cu acces asfaltat și iluminat public.
Proprietatea este situată în zona Bucium-Vișani, pe Strada Alexandru Macedonski nr. 40.
Pentru mai multe detalii, nu ezitați să ne contactați la numărul: 📞 0757 669 325 – Lorian Gherasim
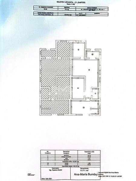
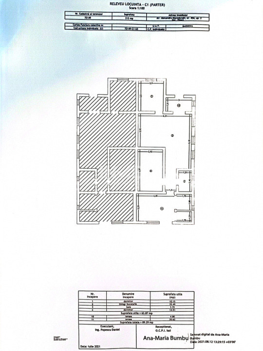
Imobilul este construit din cadre de beton, cu compartimentări din BCA și izolație exterioară din polistiren, pereți tencuiți la interior și tâmplărie PVC. Locuința are o suprafață utilă de 67 mp, iar suprafața totală este de 98 mp. Construcția a fost finalizată în anul 2018 și este compartimentată astfel:
- Parter: 2 dormitoare, 2 băi, living, bucătărie, terasă închisă, cameră tehnică.
- Pod: mansardabil, cu o suprafață utilă de 50 mp.
- Terenul are o suprafață totală de 379 mp, din care 279 mp reprezintă teren liber.
Imobilul este racordat la utilități: apă, gaze, electricitate și fosă septică, iar canalizarea se află la strada principală.
Proprietatea se vinde în stadiul actual – „la gri” în interior, cu instalațiile electrice trase, lăsând posibilitatea viitorului proprietar să personalizeze spațiile după propriul gust.
Locație: situată într-o zonă liniștită, aproape de mijloace de transport în comun care fac legătura cu orașul, cu acces facil, asfaltat și iluminat public, într-un cartier exclusiv de case.
Pentru mai multe detalii sau pentru a stabili o vizionare, contactați:
0757 669 325 – Lorian Gherasim
Comision 0%