






Invest Imobiliare vă propune spre vânzare o casă tip duplex, cu regim de înălțime Parter + Pod mansardabil, amplasată pe o suprafață de teren de 379 mp, cu acces asfaltat și iluminat public. Proprietatea este situată în zona Bucium-Vișani, pe Strada Alexandru Macedonski nr. 40. Pentru mai multe detalii, vă stăm la dispoziție la numărul de telefon afișat.
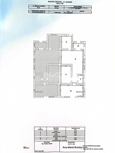
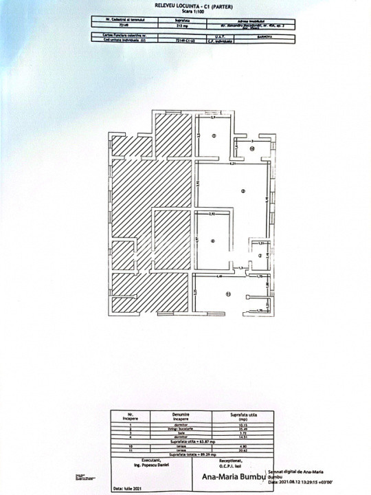
Imobilul este construit din cadre de beton, cu compartimentări din BCA și izolație exterioară din polistiren, pereți tencuiți la interior și tâmplărie PVC. Locuința are o suprafață utilă de 67 mp, iar suprafața totală este de 98 mp. Construcția a fost finalizată în anul 2018 și este compartimentată astfel:
- Parter: 2 dormitoare, 2 băi, living, bucătărie, terasă închisă, cameră tehnică.
- Pod: mansardabil, cu o suprafață utilă de 50 mp.
- Terenul are o suprafață totală de 379 mp, din care 279 mp reprezintă teren liber.
Imobilul este racordat la utilități: apă, gaze, electricitate și fosă septică, iar canalizarea se află la strada principală.
Proprietatea se vinde în stadiul actual – „la gri” în interior, cu instalațiile electrice trase, lăsând posibilitatea viitorului proprietar să personalizeze spațiile după propriul gust.
Locație: situată într-o zonă liniștită, aproape de mijloace de transport în comun care fac legătura cu orașul, cu acces facil, asfaltat și iluminat public, într-un cartier exclusiv de case.
Pentru mai multe detalii sau pentru a stabili o vizionare, contactați:
0757 669 325 – Lorian Gherasim