






















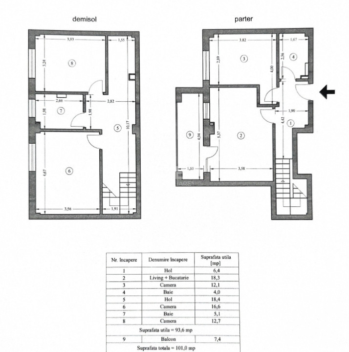
Se vinde un apartament deosebit cu 4 camere , suprafata utila 94mp+ balcon deschis de 7mp.
Dispunere: -la parter avem livingul open space cu bucataria , dormitor, hol, baie.
-la demisol avem 2 dormitoare , hol, baie cu geam, dressing.
Se preda mobilat si utilat complet.
Vine la pachet cu 1 boxa de 3,5 mp si 1 loc de parcare intabulat.
Complexul dispune si de parc pentru copii.
Foarte aproape de Moldova Mall, Carrefour market, gradinita, scoli si statia de autobuz.
Nu ratați ocazia de a vă muta într-o locuință modernă și rafinată!
Pentru mai multe detalii, nu ezitati sa ma contactati la nr: 0753.482.114