
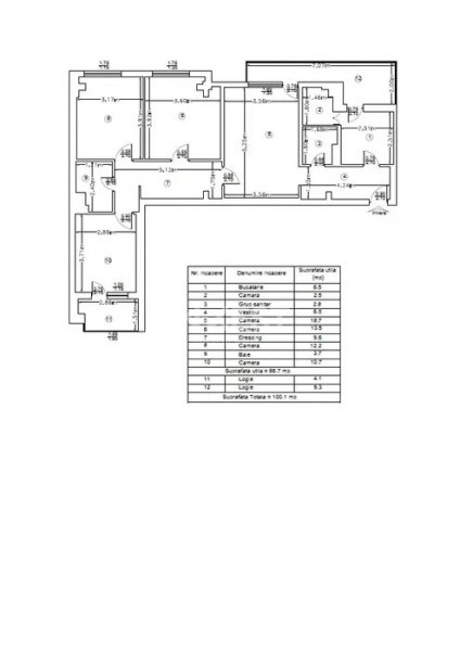
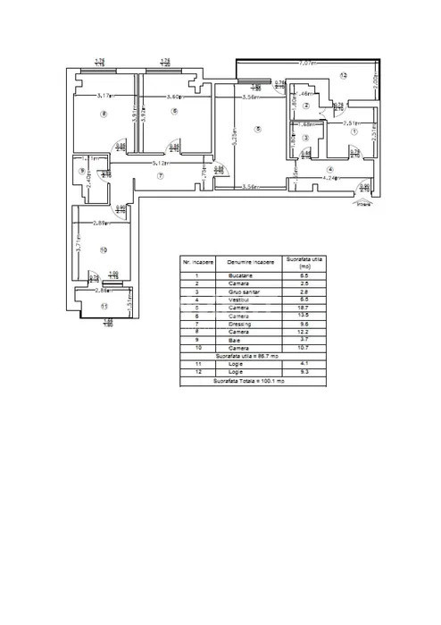
Va propunem spre vanzare un apartament cu 4 camere in zona centrala a orasului, situat la etajul 3 al unui bloc fara grad de risc seismic.
Suprafata utila totala a apartamentului este de 100mp si dispune de :
- CT proprie
-aer conditionat
-tamplarie din PVC
-2 bai
Actele sunt pregatite pentru vanzare, apartamentul este liber.
Toate facilitatile in zona.
Pentru mai multe informatii va rugam sa ne contactati la nr de tel 0752979059 Daniel