






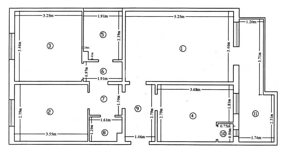
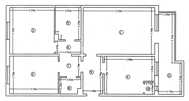
Agentia Invest Imobiliare va propune spre vanzare un apartament cu 3 camere, model decomandat situat in Tatarasi-Gradinari. Imobilul este situat la etajul 4 intr-un bloc cu 4 etaje, avand o suprafata utila de 72 mp, fara risc, finalizat in anul 1980. Cu acces rapid la mijloacele de transport, magazine, scoli, supermarketuri, locuri de joaca, farmacii, spatii verzi.
Apartamentul se vinde mobilat si utilat. Hidroizolația aferentă etajului 4 a fost modernizată în 2024, cu materiale și tehnologie actualizate.
Pentru mai multe detalii si vizionari va stau la dispozitie: 0744.288.612