
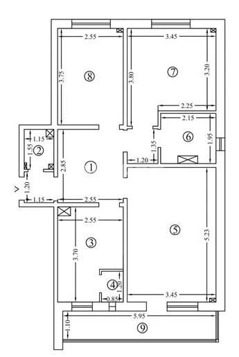
Agentia Invest Imobiliare va propune spre vaznare un apartament cu 3 camere, modelul decomandat, situat la etajul 2 intr-un bloc cu 4 nivele, in apropierea Scolii ”George Cosbuc”.
Apartamentul are suprafata de 72 mp, acesta fiind alcatuit din 3 camere, 2 bai, 1 bucatarie, 1 balcon.
Blocul nu prezinta risc seismic.
Apartamentul dispune de centrala termica proprie, geam la baie, ferestre termopan.
Pretul este de 135.000 euro.
Contactați-ne acum pentru mai multe detalii și pentru a programa o vizionare!
Alexandru Plesuvu
☎️ 0752 489 020