












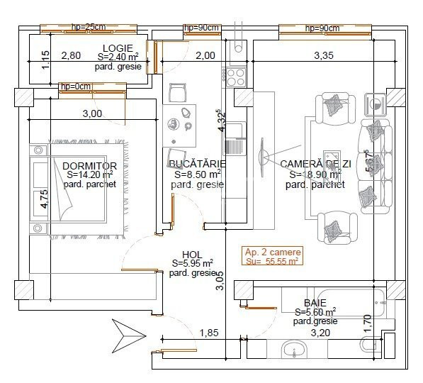
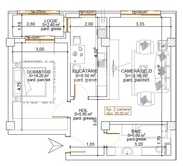
Comision 0% - pret direct de la dezvoltator. Ansamblu rezidential nou in Valea Lupului cu acces rapid catre Rond Pacurari. Este compus din 3 blocuri alipite , acces privat cu bariera, statie de autobuz langa complex.
Pentru detalii suplimentare și vizionări, vă rugăm să ne contactați la numărul 0753.482.114. Nu ratați ocazia de a vă muta într-o locuință modernă și rafinată!